Neues
ARCHIV 2005/ 2006
22.12.2006

Neubau zweier Einfamilienhäuser in Holzbauweise in Lohnsfeld.
Die Gebäude im Passivhausstandard sind in der Vorentwurfsphase.
Geplanter Baubeginn zur Jahreshälfte 2007.
27.11.2006

Energetische Sanierung, Umbau und Erweiterung - Haus Maraun in Heltersberg.
In der Vorplanungsphase...
25.11.2006


Bosslet
Brillen International in Speyer - Das von einraum gestaltete
Mobiliar überzeugt den Geschäftsinhaber und seine Kunden.
Klare
Formen mit sorgfältigen Details unterstreichen die hochwertige Auswahl
an Brillen und Schmuck.
17.11.2006

Haus2+ in
Imsbach - Das herbstliche Richtfest... die zahlreichen
Besucher zeigten reges Interesse.
Bei Fragen oder Kaufinteresse helfen wir Ihnen gerne weiter!
Ihre Anfrage
17.11.2006
Initialberatung Modernisierung
Initiative der Architektenkammer. Lassen Sie sich zum Thema Bauen, Umbauen
und Sanieren beraten...
Von der Innenarchitektur bis zum kompletten Gebäude. Wir beraten fachkundig,
unabhängig und objektiv!
Mehr Infos hier: www.diearchitekten.org
17.11.2006

Innenausbauarbeiten der Loftwohnung am Marienplatz Kaiserslautern schreiten voran...
17.11.2006

Möbel für Bosslet Brillen International in Speyer sind in der Ausführung. (Bild: Schreinerei MTB)
16.11.2006

Einfamilienhaus Ziegler- im baufälligen Bestand von 1507 finden sich beeindruckende Spuren der Vergangenheit. Hier eine Wandbordüre.
14.11.2006

Das faltbare Möbel f.l.a.t. geht in die Vorserienproduktion!
Anfragen
zu Ausführung und Preis
09.11.2006

Dornröschenschlaf - Unter den Fassadentafeln des Objekts in der Marktstraße Kaiserslautern verbergen sich (hoffentlich) ungeahnte Qualitäten, wie hier auf der Planzeichnung aus dem Jahre 1933 zu sehen.
02.11.2006

Nach Einführung der neuen Energieeinsparverordnung EnEV in 2007, muss bei allen Immobilienverkäufen und Neuvermietungen ein Energiebedarfsausausweis vorgelegt werden. Dieser soll bei Eigentümer- oder Mieterwechsel über den Energiebedarf des Gebäudes Auskunft geben.
Die Energieberatung und die Ausstellung eines Energieausweises
bieten Ihnen viele Vorteile:
- Feststellung der Energiesparmöglichkeiten
- Feststellung von Schwachstellen Ihres Gebäudes
- Dokumentation über den Stand der Technik
- Grundlage für sinnvolle Sanierungsmaßnahmen
- Vergleichbarkeit Ihrer Immobilie am Markt
Wir beraten Sie, wie Sie die Energiekosten Ihrer Immobilie
wesentlich mindern können. Damit sichern Sie sich auch langfristig
die Vermietbarkeit und die Vermarktungsfähigkeit Ihrer Immobilie gegenüber
anderen Anbietern.
Wir zeigen Ihnen Möglichkeiten, wie Sie Fördergelder erhalten
für:
- die energetische Altbausanierung (Wärmedämmung, Haustechnik)
- den energieeffizienten Neubau (Niedrigenergie- oder Passivhaus)
- den Einsatz regenerativer Energien (z.B. Geo-/ Solarthermie)
Der Energie-Ausweis
Wir erbringen unter Anderem folgende Leistungen:
- Ortsbegehung Ihres Gebäudes
- Bestandsaufnahme
- detaillierte Analyse Ihrer Immobilie
- Auskunft über die Auswirkung der neuen Energieeinsparverordnung
- Ermittlung möglicher Energieeinsparungen
- Beratung über mögliche Förderprogramme bei Neubau und Sanierung
- Abschlussbereicht über die Ergebnisse der Energieberatung
- Kompetente Beratung
- Ausstellung eines dena
- Energieausweises.
Ihre Anfrage
27.10.2006
BILD FOLGT...
Fertiggestellt - Ergotherapiepraxis in Lachen- Speyerdorf ist eröffnet. www.ergo-lilienthal.de
24.10.2006

Veröffentlicht - Unsere Projekte aus dem Bereich Augenoptik sind in der neuen EyeBizz zu sehen. pdf download
19.10.2006

Haus2+
in Imsbach - Der Rohbau steht kurz vor der Fertigstellung.
Die vorgefertigte Holzkonstruktion wird montiert.
Bei Fragen oder Kaufinteresse helfen wir Ihnen gerne weiter!
Ihre Anfrage
18.10.2006

Einfamilienhaus Ziegler in ökologischer und kostensparender Bauweise in der Vorplanungsphase. Hier ein Bild des baufälligen Bestandshauses, das dem Neubau weichen muß.
17.10.2006

Bosslet Brillen International in Speyer bekommt Modulmöbel aus schwarz durchgefärbtem MDF matt, mit glänzender Beschriftung- designed by einraum...
09.10.2006

Erweiterung Wohnhaus Traben- Trarbach ist genehmigt und kommt zur Ausführung.
05.10.2006

Vatter Baukeramik und Holzart aus Kaiserslautern Hohenecken erhalten ein Showroomkonzept.
02.10.2006

Sanierung und Projektentwicklung des Geschäftshauses
in der Marktstrasse Kaiserslautern in der Entwicklungsphase.
Demnächst mehr...
27.09.2006

einraum besucht die Photokina 2006 in Köln.
Ein eindeutiger Zuwachs an Fototerminalsystemen im Vergleich zum letzten
Jahr ist zu verzeichnen.
Meeting auf dem Stand unseres Kunden CeWe Color aus Oldenburg. Messerundgang
im pdf- Format
22.09.2006

freuen sich auf Entwürfe von einraum... Wir arbeiten daran...
18.09.2006

Erst die Arbeit... Erdgeschoß am Marienplatz wird entkernt.
15.09.2006

Wir sind wieder drin... in der OPTIC&VISION. Die Fertigstellung von Optik Siegert ist veröffentlicht in Ausgabe 07/08/09 2006. pdf download
30.08.2006


Die massiven Treppenkerne für das Projekt Haus2+ in Imsbach werden montiert. Bei Fragen oder Kaufinteresse helfen wir Ihnen gerne weiter! Ihre Anfrage
20.08.2006

Sanierung der Backsteinfassade am Marienplatz. Die Umbaumaßnahme im Erdgeschoß folgt...
10.08.2006

Eröffnung! - Optik Siegert hat termingerecht eröffnet. Bauherr und einraum sind zufrieden - Wir wünschen Optik Siegert alles Gute für die Zukunft.
03.08.2006

Endspurt! Die Spannung steigt: Wird alles rechtzeitig zur Eröffnung von Optik Siegert am 10.08. fertig?
01.08.2006


Und es bewegt sich doch! - Die Großformatdisplays in Lenticulartechnik für die BORLAND GmbH sind fertiggestellt.
28.07.2006

Ein Blick in die Werkstatt der Schreinerei MTB in Heidelberg. Die Korpuswand für Optik Siegert wird ausgefräst.
14.07.2006

Einraum baut - Die Trockenbauarbeiten für Optik
Siegert stehen kurz vor dem Abschluss.
Der Terminplan zur Eröffnung am 10. August wird gehalten.
07.07.2006


Einraum ist gut fürs Image - Imagebroschüre für die decadis ag. Der Spezialist für Business Intelligence, Customer Relationship Management und Data Management mit Sitz in Koblenz beauftragte uns mit Konzeption und Entwicklung von Imagebroschüre, Messestand und Streuartikeln...
05.07.2006

Einraum baut - Die Ausbauarbeiten für Optik Siegert sind in vollem Gange.
26.06.2006


Konzept - Einraum schlägt ein Konzept zur Umnutzung des ehemaligen Gefängnisses im Quartier Hornbach in Neustadt vor.
Nutzer: direct werbeagentur neustadt
09.06.2006

Einraum baut - Die tragenden Bodenplatten für das Haus2+ sind hergestellt.
22.05.2006

Machbarkeitsstudie Banf Werbetechnik Kaiserslautern...
Unkonventionelles und spannendes Konzept für den Firmensitz der lauterer
Werbeagentur. Die Materialien und die Form schaffen den Spagat zwischen
bestehender Struktur im Quartier und dem Anspruch ein aufseheneregendes
Gebäude zu erstellen.
hier geht´s
zum Projekt...
16.05.2006

Cameo ist VIP Location der FIFA WM 2006!
Der von uns gestaltete Club spielt mit in der Oberliga der After- Game Events.
hier
geht´s zur Info...
28.04.2006

Projektentwicklung: Barrierefrei Wohnen in Heidelberg- Eberbach in der Prüfungsphase...
18.03.2006

Weiterbildung und Exkursion- Seminar der Denkmalakademie auf Schloß Romrod: Finanzierung von Denkmal- und Sanierungsprojekten.
16.03.2006
einraum bewegt- Bilder für Cewe Color. Wir produzieren ein Gross-formatdisplay mit Linsenrastertechnik als Prototyp.
13.03.2006

Marienplatz - einraum baut Wohnraum im Loft Style, demnächst mehr...
10.03.2006

Optik Siegert - Visualisiert, derzeit in der Ausführungsplanung...
06.03.2006

Einfamilienhäuser Otterberg- Entwurf von 8 Einfamilienhäusern. Siedlung mit modernem, klarem Charakter für amerikanische und deutsche Käufer.
03.03.2006

Optik Siegert- zügiger Baufortschritt. Ausbaubeginn der Geschäftsräume vorraussichtlich Juni/ Juli 2006
01.03.2006
Veröffentlicht! - Der Entwurf der Geschäftsräume von Optik Siegert in Mannheim Feudenheim ist in "DER AUGENOPTIKER" Ausgabe 3/ 2006 mit einer Doppelseite veröffentlicht. download pdf
24.02.2006

Einraum baut - Ergotherapiepraxis in Lachen- Speyerdorf.
20.02.2006
Einraum innovativ - Wir bieten Berechnung und Produktion
von Displays und Produkten mit Linsenrastertechnik (Lenticular). Ob Kulisseneffekt,
Animation, Flipeffekt oder mehr - Fragen Sie uns!
Wir bringen Bewegung in Ihre Werbewelt...
06.02.2006

Energiepass für Alt- und Neubau - Einraum bietet Beratung zu energetisch optimiertem Bauen und Sanierung. Erstellung von dena Energiepässen. Beratung zu Förderung und kfw Krediten.
31.01.2006

Genehmigt! - Anbau »De Sousa« in Kaiserslautern Stadtteil Kotten wurde durch Bauaufsicht und Bauausschuss genehmigt...

Einraum präsentiert - sich selbst. Im Rahmen der Veranstaltung IA offen des BDIA am 5. und 6. Mai. Ausstellung, Lounge und Tappasbar!
30.01.2006

Einraum baut - Die Abrissarbeiten des Bestands für das Projekt Haus2+ haben begonnen.
29.01.2006

Einraum baut - Optik Siegert in Mannheim Feudenheim freut sich auf neue Geschäftsräume. Wir freuen uns mit!
26.01.2006
Einraum präsentiert - Unsere Webseite hat ein neues Gesicht.
18.12.2005

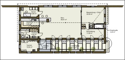
Einraum schlägt vor - Projektstudie für die Kreissparkasse Kaiserslautern. Neugestaltung der Geschäftsräume der Hauptgeschäftsstelle Fackelstrasse.
15.12.2005

Einraum baut - Anbau und Umbau Haus Reinhard in Traben Trarbach
14.12.2005

Einraum visualisiert - Reihenhausprojekt für MIC GmbH Heidelberg. Visualisierung einer Reihenhausanlage in Grünstadt
19.09.2005

einraum bietet an - Rapid Prototyping, schnelle Modelle im 3-d Druckverfahren der Z- Corporation.